Makovecz Imre öt évtizedes munkássága alatt több mint ötszáz épületet tervezett. A tervek közül több mint kétszáz megvalósult – ezek közül ötven kapott műemléki védettséget 2011 óta. A védetté nyilvánított épületeknek korábban átfogó bemutatása még nem készült, így cikksorozatunkkal ezt a hiányt kívánjuk pótolni.
A közelmúltban számos portálon megjelent a hír, hogy eladó Makovecz Imre egy korai „ikonikus” épülete, a balatonszepezdi Sellő étterem. Az 1964-ben épült, 1965-ben átadott épületről készült archív fotókon egy modern, mégis egyéni megjelenésű, a Wright-i organikus építészetet megidéző, súlyos támfalon ülő, hatalmas üvegfelületek fölött szinte lebegő vasbeton tetővel lezárt épületet látunk.
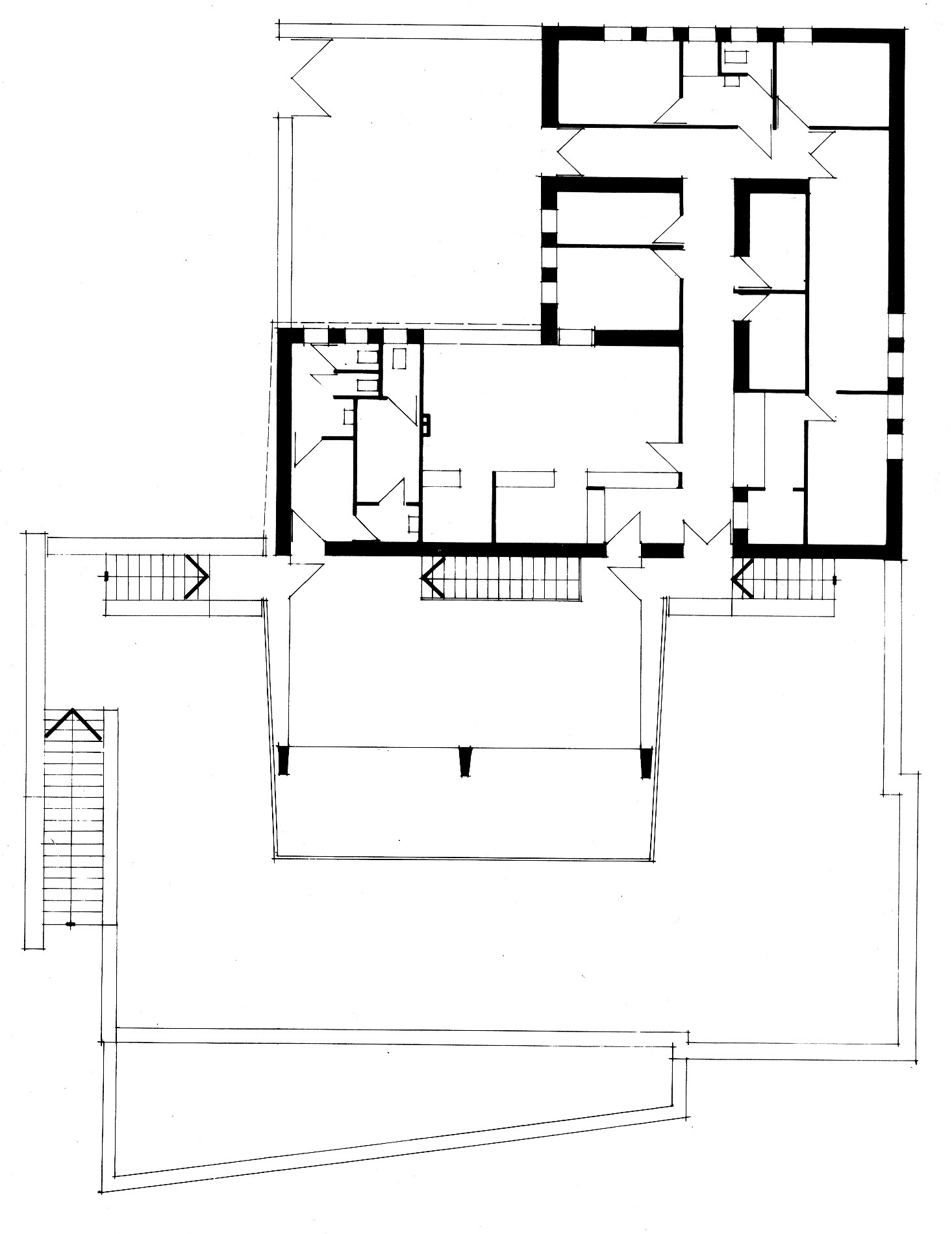
A 71-es út melletti, egykori kovácsműhelyre telepedő vendéglő a szemközti vasútállomás fölött éppen úgy nyílik fel a balatoni panorámára, mint a velencei Cápa vendéglő a tóra. Elképzelhető, hogy a tervezői szándék hasonló volt (a tervezés és a kivitelezés éve is megegyezik a két épület esetében), azonban a tervek itt számos átalakuláson mentek keresztül, mire engedélyt kaptak. A tervező így nyilatkozott a szepezdi étteremről:
„Nem az a változat épült meg, amit akartam. Építettem egy másik balatoni vendéglőt is Füreden, ahol ugyanez történt, az akkori zsűrik – fiatal voltam – megmondták, hogy vigyem a fenébe, amit rajzoltam, és hozzak egy másikat. Addig rajzoltatták velem, ameddig ez ki nem jött. Kudarcok ezek a házak. Ennek ellenére amikor elkészültek, akkor még az akkori viszonyokhoz képest ezek jó házaknak mutatkoztak, de valójában nem lehet őket teljes szívvel vállalni.” (1)
A fentiek fényében feltehetően nem véletlen, hogy a házat nem publikálta Makovecz Imre egyetlen kiadványban sem, és a fenti idézeten kívül nem is ismerünk az épületre vonatkozó nyilatkozatot a tervezőtől.
A terveket olvasva azonban az épület működése könnyen megismerhető: az egykori kovácsműhelyben a 71-es út felől és az emeletről is megközelíthető boltozatos borozót alakítottak ki. A támfalrendszerbe épített lépcsőkön lehetett feljutni az üvegfalakon belül és kívül elhelyezkedő fogyasztótérbe. Emögött következtek a kiszolgálóterek: a vizesblokkok és a konyhatechnológia. A gazdasági bejárat a parkoló mögötti szervizútról volt elérhető.
1965-ben több lap is beszámolt a kővágóörsi ÁFÉSZ által üzemeltetett, elsőosztályú, reprezentatív étterem várható megnyitásáról. Ezekből a hírekből megtudhatjuk azt is, hogy a bort kétliteres hordócskákban szolgálják majd fel, mely hordócskákat a vendégek meg is vásárolhatnak. (2) A hetvenes években már másodosztályú étteremként említik Balatonszepezd egyetlen vendéglőjét, aminek a kempingben megszálló és átutazó turisták biztosítják a forgalmát. (3)
1981-ben már a Tapolca és Vidéke ÁFÉSZ keresett bérlőt az étterem üzemeltetésére. (4) A hírek alapján arra következtethetünk, hogy nem volt sikeres az így létrejött együttműködés, mivel 1985-ben új üzemeltetőről számol be a Szövetkezet, akinek a működéséhez nagy reményeket fűzött a helyi ÁFÉSZ vezetése. Ugyanebből a beszámolóból kiderül, hogy a borozót videódiszkóvá alakították. (5) 1995-ben eladásra kínálták az épületet. (6) A következő két évtizedben nem ismerjük az étterem sorsának alakulását.
A felhagyott étterem 2016-ban kapott műemléki védettséget, (7) feltehetően azzal a szándékkal, mint a szekszárdi Sió csárda: a szemmel látható pusztulás megállítására. Míg Szekszárdon a döntés legalább részeredményeket hozott, a balatonszepezdi épület sorsa már-már abszurd fordulatot vett. A 2018-ban még láthatóan leromlott állapotú egykori éttermet (a romlás leglátványosabb áldozata a lebegő tető terasz fölé nyúló konzolos szakasza) elkezdték felújítani – a műemléki védettség teljes semmibevételével.
Az épületben az eredeti rendeltetéstől eltérő lakó/szállás funkciót alakítottak ki. A hatalmas üvegportálokat sűrű osztású műanyag nyílászárókra cserélték, a teraszra fa korlát, a 71-es út mellé az eredeti karakterjegyeket eltüntető kerítés épült. Az egyetlen pozitív beavatkozásnak a terasz fölé nyúló konzolos tetőszakasz helyreállítása tekinthető.

A felújítás kibontakozása során a Makovecz Imre Alapítványt többen is értesítették az épület átalakulásáról, hátha valamilyen módon gátat lehet annak szabni. Az Alapítvány képviselői hiába vették fel a kapcsolatot az önkormányzattal, az örökségvédelmi hatósággal és magukkal a tulajdonosokkal – azt kérve, hogy a funkcióváltás ellenére legalább a külső, műemléki értéket képviselő karakterjegyeket állítsák vissza, minden egyeztetés eredménytelen volt.
Az egykori Sellő éttermet 2022-ben kínálták először eladásra, majd négy évvel később, 2026 februárjában hirdették meg újra. Jelenleg az ingatlanhirdetés értéknövelő lehetőségként említi az eredeti állapot és funkció visszaállítását.
A Sellő története sajnos nem egy tündérmese. Már a születése is terhelt volt, a tervező sem tudta jó szívvel vállalni – mégis a korszak egyik valóban ikonikus építészeti emléke lehetne ma, ha eredeti állapotában állna. Több évtizedes működése sem tekinthető sikertörténetnek, az utóbbi évek eseményei pedig minden szereplő számára kudarcként könyvelhetők el. A történet azonban még nem ért véget: az épület továbbra is ott áll a 71-es út mellett, a sárgára és narancsra mázolt kerítése mögött, és megmentőre vár.
Sellő étterem
Helyszín: Balatonszepezd
Tervezés éve: 1963
Kivitelezés: 1964
Védetté nyilvánítás éve: 2016
Szöveg: Harmath-Gyetvay Enikő
Képek, tervek: Csernyus Bence, Makovecz Benjamin, Rüll Tamás, Makovecz Imre Alapítvány
Források
(1) Gerle János (szerk.): Makovecz Imre. Tervek, épületek, írások. 1959-2001. epl kiadó, Budapest 2015. 98.o.
(2) Új vendéglők, presszók, zöldségboltok, mozgó szerviz a Balaton körül. In: Szövetkezet, 1965. XVIII. 11.
(3) Csendes üdülő, gyenge ellátás. In: Veszprémi Napló, 1970. XXVI. 183. 4. o.
(4) Bérbe adó üzletek a Balatonnál. In: Dunántúli Napló, 1981. XXXVIII. 330. 5. o.
(5) A szepezdi „Sellő”. In: Szövetkezet, 1985. XXXIX. 28.
(6) Veszprémi Napló, 1995. LI. 84. 8. o.
(7) 600/1519-5/2016 Forster Központ hatósági határozat













