Az Oskar Ház egy dél-csehországi falu, Kamenná Lhota hatalmas barokk kertjében épült meg 2025-ben. A telek eredetileg a szomszédos kastély parkjához tartozott, amelyet egy barokk pajta maradványa és évszázados fák gazdagítanak.
A házat Jan Žaloudek építész tervezte saját maga és családja számára. Feleségével, Jolanta Torjak művészettörténész és íróval közösen álmodták meg új otthonukat, ahol az ember a tájjal és környezetével úgy tud kapcsolódni, hogy közben elvonultan, befelé fordulva tudjon fizikailag és mentálisan is erőt gyűjteni. Céljuk volt, hogy a ház egyszerre legyen nyugodt, pihentető tér, miközben a mindennapi életükben oly fontos szerepet játszó művészeti, inspiratív közeg is megvalósuljon. Ehhez fontosnak tartották, hogy olyan tereket hozzanak létre az épületben, amelyek a mindennapi teendőiket apró, mélyreható tapasztalatokká transzformálják, egyfajta hétköznapi mikrokozmoszt hozva létre, ahol az olvasás, alvás, takarítás vagy étkezés a kívül elnyúló univerzummal kerül szimbiózisba.
A tervezési és építési folyamat integráns részét képezte a telekkel és környezetével való viszony. Figyelembe kellett venniük a barokk udvar örökségvédelmi korlátozásait és olyan lakóházat létrehozni, amely a területbe és annak történelmi örökségébe organikusan illeszkedve nem árnyékolja be a kúriát, meghagyva a helyszín időtlenségét.
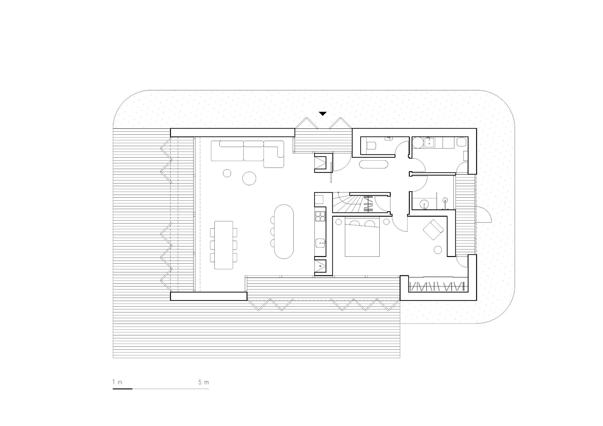
Az épület megőrzi a hagyományos nyeregtetős házak hosszúkás formáját, a környező mezőgazdasági épületekből merítve inspirációt. Anyaghasználatában is hagyományőrző, a főfalak kerámia téglából épültek, a fehér vakolt homlokzat pedig a környező épületek hangulatát és textúráját visszhangozza. A tető égetett kerámia cserepekkel fedett, a fa árnyékoló panelek pedig cseh fenyőből készültek. A ház egyik legmeghatározóbb jellemzője, a perforált falazat a környező történelmi építményeknek gyakori motívuma, mely látványos fényjátékot és szellőzést biztosít. Emellett a déli oromfal napellenzőjeként is funkcionál, míg a szemközti oldalon letükröződik a fa panelek hasonló mintázatában. A homlokzatokat barokk morfológiai utalásként falfülkék törik meg. A falpanelek teljesen nyithatóak és zárhatóak, ezáltal a belső tér hol kitárul a külső világra, hol teljesen bezárulva kiemeli annak meditatív, intim karakterét.
A ház tájolásakor a napszakok váltakozása és a fény útjai fő szempont voltak. A nappali és a hálószoba ablakaiból gyümölcsösre néző panoráma nyílik, amelyből látható a nap- és holdfelkelte. A déli homlokzat a fő közösségi teret köti össze az udvarral és a pajta romjaival. A nyugati oldal viszonylag zárt bejárata és falazata a falutól zárja el a lakók mindennapjait, a hasonlóan lyuggatott, boltíves bemélyedés által mégis fényt engedve be a ház ezen részeibe is. A nap útjának követéséhez járul hozzá a hatalmas árnyékoló panelek állíthatósága, amely által nappal lenyűgöző fényjáték kíséretében árad be a fény, éjjel pedig megfordulva ki, az udvarra vetíti a belső otthonosságot az éjszakai tájba.
Míg kívülről a ház hagyományosabb formákat jelenít meg, belül eredeti, személyesebb motívumokat valósítottak meg, melegebb, ívesebb formákkal. A nappali hét méter magas tere, fehér stukkó falaival és hatalmas ablakaival a kívül is megjelenő kápolnaszerű, szakrális, éteri inspirációt viszi tovább. Mivel a faluban nincsen kápolna, házukba szerették volna belevinni e motívumokat. Ugyanígy a szakrális építészetre való utalásként jelenik meg a déli oromfalon elhelyezett két méter széles körablak. A belső tér fő fókuszpontja a falba süllyesztett konyha, amely előtt oltárra emlékeztető gránit konyhaszigetet helyeztek el. Ez a központi színtere mindennapi rituáléiknak. A teret az étkező egészíti ki, melyre egy 19.századi faragott Madonna néz. A belső terek bútorzatait, szobrait is nagyrészt az építész tervezte vagy válogatta ki, a külsőhöz hasonló koherenciát hozva létre minden szobában. A tágas, nyitott alsó térhez képest az emelet zárt, barlangszerű, kifejezetten elvonulásra, introspekcióra és alkotásra alkalmas, tetőtéri falait boltívek és kiszögellések törik meg. A házban tehát fontos szerepet játszik a szakrális tér megteremtése által a kint és bent, magán és nyilvános külön szféráinak tiszteletben tartása de igény szerint, a megfelelő közegben való összeengedése és megélése a mindennapokban.
Az Oskar Ház nevét Oskar Nedball zeneszerzőről kapta, aki a szomszédos kastélyban komponálta 1913-ban debütáló, Polish Blood című operettjét. Ezt a különös és egyedi összművészeti alkotást tulajdonosai és alkotói szeretnék megosztani a nagyközönséggel. A ház így bérelhető lakásként, de művészeti programok, pop-up események és workshopok tartására egyaránt. A tulajdonosok örömmel fogadják az őket körülvevő élénk, inspiratív és kreatív közösségeket, embereket.
Építészet: Jan Žaloudek Architekt
Szerző: Jan Žaloudek
Fotók: BoysPlayNice























