A szelíd, mediterrán hangulatú táj változatos formájú hegyei, falvai, szőlőskertjei és erdei harmonikusan simulnak egymáshoz, megteremtve a vidék utánozhatatlan atmoszféráját. Ez a különleges környezet a Káli-medence. A Balaton-felvidéki Nemzeti Park szívében, Salföldön járunk, ahol jelentős földtani, növénytani és népi építészeti értékek őrződtek meg.
A település egyedi hangulatába, valamint természeti és épített örökségébe szeretett bele az a házaspár is, akik 2011-ben egy hagyományos balaton-felvidéki parasztporta nyaralóvá alakításával bízta meg a Mérmű Stúdiót. Farkas-Mezei Zsófia, az iroda akkori vándor építésze – ma a Szentendrei Skanzen építészmérnöke – egy közel százéves épülethez méltó építészeti érzékenységgel nyúlt a meglehetősen romos házhoz. Bár nem volt jó állapotban sem a klasszikus, háromosztatú parasztház, sem pedig a mögötte álló csűr és istálló, az elbontás gondolata fel sem merült. A tervezés során arra törekedtek, hogy a felújított ház úgy illeszkedjen a környezetébe, mintha mindig is ott állt volna.
Ugyan a falak és födémgerendák jó állapotban voltak, a felújítás így is jelentős beavatkozásokat igényelt: a házban nem volt bevezetve sem víz, sem gáz, a tetőt, a padlószerkezetet és a nyílászárókat pedig teljes egészében cserélni kellett. Az átalakítás végeredménye egy egész évben kényelmesen használható otthon lett, ami mindenben megfelel a mai komfortigényeknek.
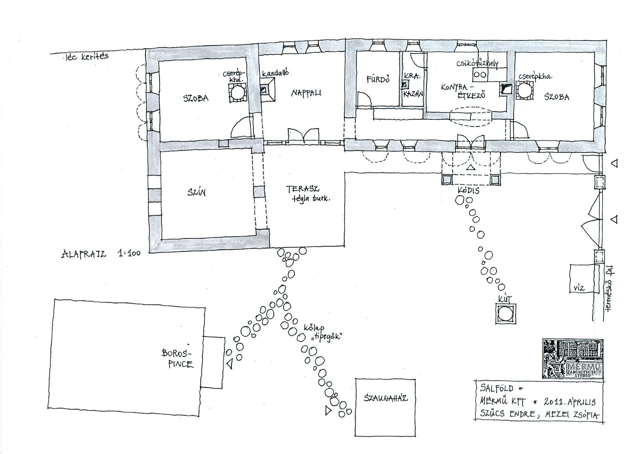
Alaprajzilag az épület csak minimálisan változott. A háromosztatú parasztház és a keresztcsűr összekapcsolásából létrejövő L-alakú alaprajz jól működő, modern életteret eredményez. A családi élet és így a ház központjában a konyha áll. Mellette az új nappali helyezkedik el, ami az egykori ól és a régi ház összekapcsolásával alakult ki. A közösségi terek, mint a nappali, a hozzá kapcsolódó nagy terasszal, valamint az egykori szín – ma tánctér – ideálisak nagyobb baráti összejövetelek befogadására. A csűr szintén a táncházak hangulatát idézi. A borospince és a fürdőház épülete megőrizte eredeti karakterét.
A tervező tudatosan alkalmazta a helyi népi építészet jellegzetes anyagait, színeit és formavilágát. Az utcai homlokzat tulipános vakolatdísze, valamint a sárga lábazat mind salföldi karakterek. A hagyományokat mélyen tisztelő építészeti attitűd harmonikusan egészül ki apró egyedi megoldásokkal, mint a kéményfejek eltérő kialakítása vagy a megbízó gyermekeinek monogramja, ami a kódisállás vakolatdíszébe bújik el.
A belső tereket a látszó fafödém és a gondosan összegyűjtött parasztbútorok teszik teljessé, tovább erősítve az építészetben megfogalmazott hagyományőrző szemléletet. A megrendelő érdeme, hogy a felújítás során a kert eredeti növényzetének és gyümölcsfáinak megőrzése is kiemelt szempont volt. A megbízó, a tervező és a kivitelező közötti összhang eredménye, hogy a szomszédok a falu legszebb házaként emlegetik a nyaralót.
Stáblista:
Felelős tervező: Szűcs Endre, Mérmű Kft.
Építész tervező: Farkas-Mezei Zsófia
Tüzelőberendezések: Szűcs Apor, Szűcs Kenéz
Szöveg: Ungváry-Kiss Márta







